Skip To Content

2640 Chambers Ave

Kingman, AZ 86401
  • $210,000
  • STATUS: Closed
  • ON SITE: 292 Days
  • MLS #: 030987
Sold - 03/10/2026
$210,000
SOLD - 03/10/2026
  • 3
    BEDS
  • N/A
    ACRES
  • 2
    BATHS
  • 0
    1/2 BATHS
  • 1,077
    SQFT
  • $195
    $/SQFT
Neighborhood:
Type:
Single-Family Home
Built:
2000
County:

School Ratings & Info

Description

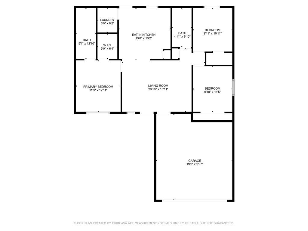
Charming 3-bedroom, 2-bath home with a 2-car garage located in the heart of Kingman! You'll love the convenience of being close to shopping, banks, and all your daily essentials. Nestled in a well-maintained neighborhood, this home offers privacy with walled front and back yards. Inside, enjoy an open-concept kitchen featuring stainless steel appliances, plus the washer, dryer, and refrigerator are included! Natural gas connection adds efficiency and comfort. The primary suite boasts a spacious walk-in closet and a walk-in shower. Inside laundry and thoughtful layout make this home as functional as it is cozy. A great find in a great location!

Monthly Payment Calculator

Listing information © 2026 Western Arizona Realtor Data Exchange. IDX data provided exclusively for consumer's personal, non-consumer use and may not be used for any purpose other than to identify prospective properties consumers may be interested in purchasing. Data is deemed reliable, but not guaranteed accurate by the Western Arizona Realtor Data Exchange. Data last updated: 2026-05-10T16:43:54.837.
www.countryranchrealty.com/homes/166108756
Print Image

2640 Chambers Ave Kingman, AZ 86401

  • Price: $214,998
  • Status: Closed
  • On Site: 292 Days
  • Updated: 22 min ago
  • MLS #: 030987
3
Beds
2
Baths
0
½ Baths
N/A
Acres
1,077
SQFT
$195
$/SQFT
2000
Built
Neighborhood:
Golden Gate Addition
County:
Mohave
Property Description
Charming 3-bedroom, 2-bath home with a 2-car garage located in the heart of Kingman! You'll love the convenience of being close to shopping, banks, and all your daily essentials. Nestled in a well-maintained neighborhood, this home offers privacy with walled front and back yards. Inside, enjoy an open-concept kitchen featuring stainless steel appliances, plus the washer, dryer, and refrigerator are included! Natural gas connection adds efficiency and comfort. The primary suite boasts a spacious walk-in closet and a walk-in shower. Inside laundry and thoughtful layout make this home as functional as it is cozy. A great find in a great location!
Exterior Features

Construction Materials Wood Frame Entry Location Ceiling Fan(s) Counters- Laminate Dining- Casual Pan Exterior Features Garden Landscaping Shed Fencing Block Back Yard Front Yard Garage YN Yes Lot Features Public Road Street Level Lot Size Dimensions 50x100 Parking Features Attached Finished Garage Garage Door Opener Patio And Porch Features Covered Patio Pool Features None Pool Private YN No Road Surface Type Paved Roof Shingle

Interior Features

Appliances Dryer Dishwasher Electric Oven Electric Range Disposal Refrigerator Water Heater Washer Cooling Central Air Electric Cooling YN Yes Fireplace YN No Flooring Hard Surface Flooring or Low Pile Carpet Heating Central Electric Heating YN Yes Interior Features Ceiling Fan(s) Dining Area Laminate Counters Laminate Countertop Pantry Walk- In Closet(s) Window Treatments Rooms Total 5 Window Features Low- Emissivity Windows Window Coverings

Property Features

Accessibility Features Low Threshold Shower Association YN No Buyer Financing Conventional Electric 110 Volts220 Volts Green Energy Efficient Windows Green Water Conservation Low- Flow Fixtures Land Lease YN No Laundry Features Inside Laundry in Utility Room Listing Terms Cash Conventional1031 Exchange FHA VA Loan New Construction YN No Property Sub Type Single Family Residence Property Sub Type Additional Single Family Residence Tax Annual Amount 554 Tax Year 2024 Utilities Natural Gas Available Water Source Public Zoning Description K- R1-6 Res: Sing Fam 6000sqft

Listing provided by Coldwell Banker Realty: 928-855-2191.
Listing information © 2026 Western Arizona Realtor Data Exchange. IDX data provided exclusively for consumer's personal, non-consumer use and may not be used for any purpose other than to identify prospective properties consumers may be interested in purchasing. Data is deemed reliable, but not guaranteed accurate by the Western Arizona Realtor Data Exchange. Data last updated: 2026-05-10T16:43:54.837.
 
https://bt-photos.global.ssl.fastly.net/wardex/orig_boomver_1_030987-2.jpg https://bt-photos.global.ssl.fastly.net/wardex/orig_boomver_1_030987-2.jpg https://bt-photos.global.ssl.fastly.net/wardex/orig_boomver_1_030987-2.jpg
Logo
Country Ranch Realty
1858 Highway 95
Bullhead City AZ, 86442